Altos Bay
East Palo Alto, California · New Homes

Altos Bay

Modern living in the heart of Silicon Valley.

Four new two-story single-family homes · Pricing upon request · Target completion Spring 2026
Community 4 single-family homes
Bedrooms & Baths 3 bed · 2.5 bath
Living Area ~1,835 sq ft
Parking Attached 2-car garages

Designed for Silicon Valley life

New construction homes minutes from major tech campuses, freeways, and everyday conveniences.

Altos Bay is a limited collection of four two-story single-family homes in East Palo Alto, created for professionals and families who want be centrally located while enjoying the comfort of a modern build. Open interiors, attached garages, and thoughtful details make it easy to move between home, office, and everywhere in between.

  • New-construction homes in an established East Palo Alto neighborhood.
  • Central access to the Silicon Valley tech corridor, including nearby Meta, Amazon and other tech campuses in Menlo Park.
  • Minutes to key freeways and main access routes across the Peninsula.
  • Walking distance to local shops, grocery, and coffee.
Pricing upon request Target completion Spring 2026

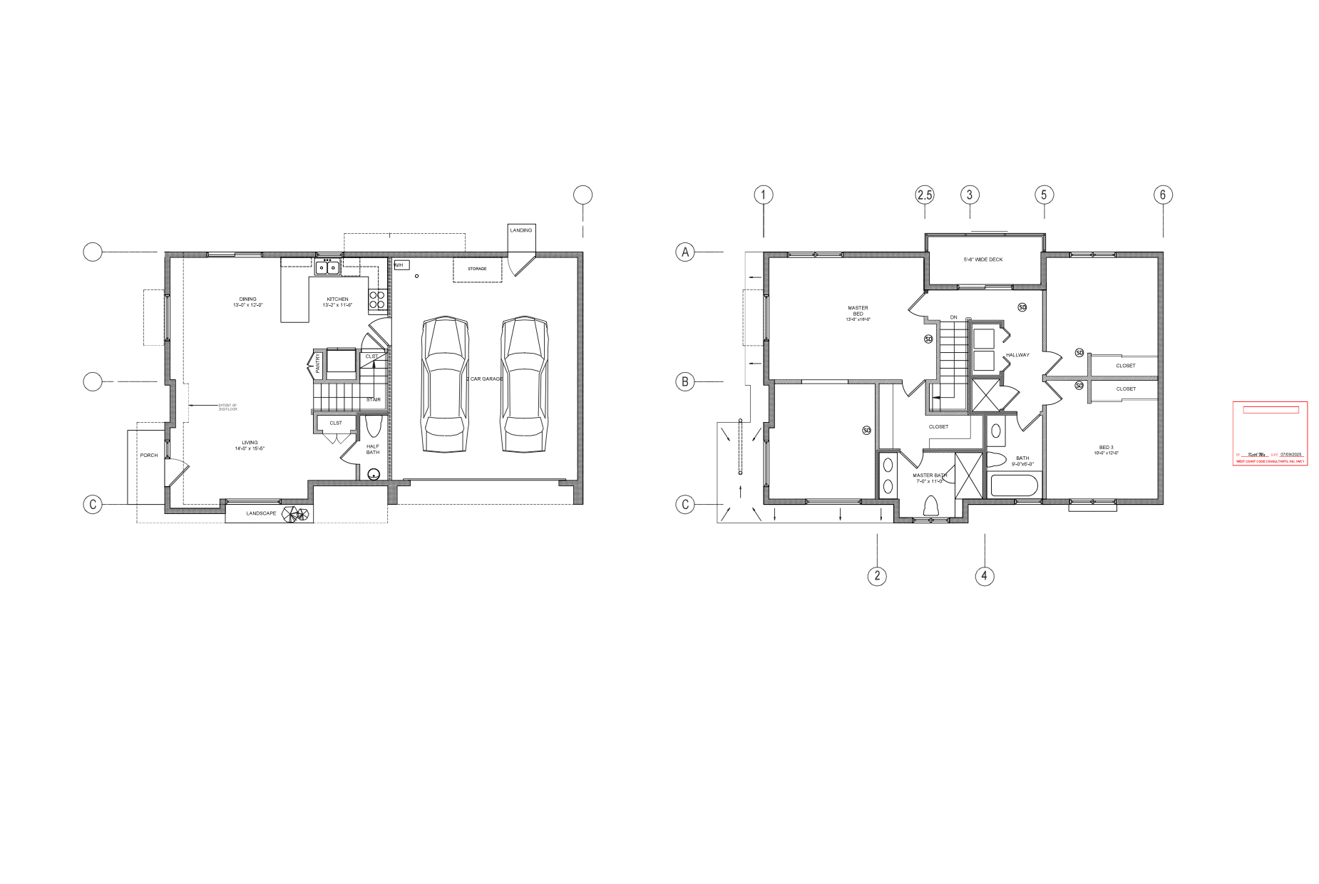
Homes & Floorplan

Efficient two-story layouts with open main levels and a dedicated bedroom level above.

The Residences

  • Four two-story single-family detached homes.
  • Approx. 1,835 sq ft of interior living space.
  • 3 bedrooms and 2.5 bathrooms.
  • Attached 2-car garages with direct interior access.
  • Open kitchen, dining, and living spaces oriented for natural light.
  • Upper level with primary suite, secondary bedrooms, and convenient laundry.
  • Includes security system and solar system.
  • With attached outdoor space and balcony.

Floorplan & Elevation

Exterior elevations – conceptual design. Click to view larger.
Two-story floorplan – layouts may vary by homesite. Click to view larger.

Location

809 Donohoe, East Palo Alto, CA

Altos Bay sits in the heart of Silicon Valley, close to major tech employers and commuter routes. It’s an ideal location for buyers who want to shorten their commute and stay connected to the broader Bay Area.

  • Near Meta and Amazon Silicon Valley campuses.
  • Easy access to key freeways and main access points across the Peninsula.
  • Walking distance to neighborhood shops, grocery, and coffee.
  • Short drives to Caltrain, regional shopping, and dining.

At-a-glance

  • Address: 809 Donohoe, East Palo Alto, CA
  • Highly connected location within the broader tech corridor.
  • Residential street with convenient access to everyday essentials.

Customize Your Home

Early buyers will have the opportunity to personalize select elements of their Altos Bay residence.

For buyers who purchase early in the construction timeline, Altos Bay is planned to offer a curated set of customization options. This lets you align your home with your lifestyle and aesthetic while still enjoying the ease of a new, professionally designed build.

  • Potential to choose from designer finish packages for flooring, countertops, and cabinetry.
  • Options to integrate smart-home and technology features for a connected Silicon Valley lifestyle.
  • Energy-conscious systems and efficiency upgrades planned as part of the overall design.
  • Early buyers may also be eligible for additional incentives or preferred offerings, subject to availability and builder programs.

Availability and scope of customization will depend on construction progress and final builder offerings. Full details will be provided to interested buyers.

Visit & Request Information

To learn more about Altos Bay, including pricing, availability, and full specifications, please reach out directly or submit an inquiry. Early interest is encouraged for buyers seeking customization options.

Builder information:
Bruce Bonfeld
Phone: (831) 212-8595
Email: bruce@bonfieldco.com
Timeline: Target completion Spring 2026 with early buyer opportunities to personalize select finishes and technology, subject to construction schedule.